Villa des Familles
Villa des Familles
- Villa des Familles -
- Villa des Familles -

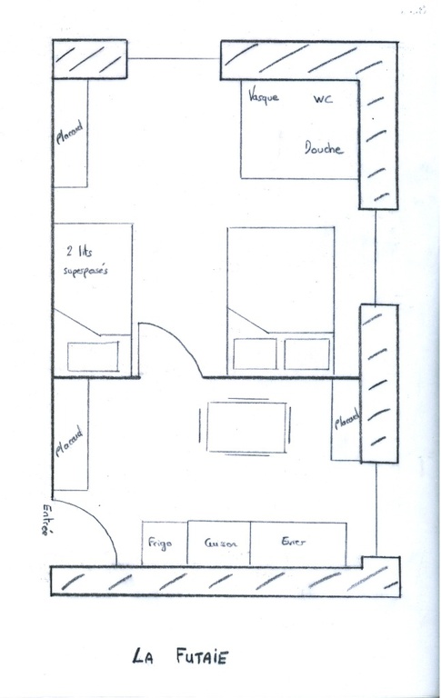
La Futaie (2H)

Logement F1 situé au rez de chaussée de la Villa des Familles, pouvant accueillir 4 personnes

Superficie de 25 m², wifi

Chauffage central sur réseau de chaleur biomasse, fenêtre PVC double vitrage

Le locataire dispose en communauté d'une cour équipée de salon de jardin, barbecue

 

 

Description du meublé :

 

- 1 chambre : 1 lit de 2 places (140cm) + 2 lits superposés à 1 place (90cm), avec 1 fenêtre située à l'est et 1 fenêtre située au sud

- literie : sommiers à lattes, matelas, oreillers, couvertures

- coin cuisine avec 1 fenêtre située au sud

- équipement : plaque de cuisson 4 feux (bouteille de gaz), évier 2 bacs, réfrigérateur, mini four, micro-ondes, cafetière, bouilloire, grille pain, batterie de cuisine, téléviseur écran plat, fer et table à repasser, étendoir

- salle d'eau (type cabine) avec douche, lavabo, wc

 

 


Appel